聯系方式 |
電話(市場部):0517-86851868 |
0517-86882048 |
0517-86881908 |
(拓展部):0517-86882683 |
傳真:0517-86851869 |
節假日商務聯系電話:
何經理:13655238295
紀經理:18015196880 |
郵編:211600 |
網址:http://m.fzhbn.com/ |
http://www.sukeyb.com/ |
E-mail:china-suke@163.com |
sukeyb@163.com |
地址:江蘇省金湖縣工業園區環城西
路269號 |
|
|
 |
您現在的位置 > 首頁 > 行業新聞 > 氣體渦輪流量計工作原理與結構 |
氣體渦輪流量計工作原理與結構 |
氣體渦輪流量計工作原理
當被測流體流經傳感器時,傳感器內的葉輪借助于流體的動能而產生旋轉,葉輪即周期性地改變磁電感應系統中的磁阻值,使通過線圈的磁通量周期性地發生變化而產生電脈沖信號,經放大器放大后進行顯示或傳送至相應的流量積算儀表、PLC或上位計算機,進行流量或總量的測量。
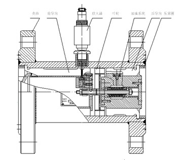
氣體渦輪流量傳感器的基本結構
傳感器的基本結構如圖所示,它主要由殼體、前導向架、葉輪、后導向架、壓緊圈、加油系統(DN40以上)和放大器或顯示轉換器等組成:

|
|